INVERSIONES GRUP REAL ESTATE BOUTIQUE us presenta aquest local comercial – oficina AMB LLICÈNCIA DE CENTRE SANITARI en venda a Ciutat Vella.
En una àmplia i tranquil·la plaça tancada a la nit a prop del MACBA, trobem aquest local de més de 400m2, en un edifici reformat i en perfecte estat.
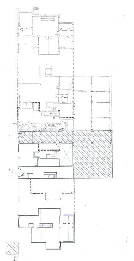
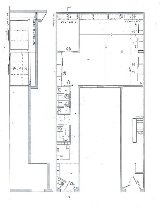
Una entrada a peu de carrer amb un rebedor ens introdueix en aquest local – oficina on a la primera planta trobem diversos espais dividits en dos banys, un espai cuina, un traster tres despatxos i dues àmplies sales lúdiques.
El passadís connecta una entrada amb la segona entrada sempre des del mateix carrer, en aquesta part trobem les escales per pujar a la segona planta, hi ha també un ascensor – muntacàrrega.
En aquesta segona planta més petita d’aprox 86m2 trobem un espai diàfan amb dos despatxos, un bany i un espai – cuina.
El local està en perfecte estat, terra en parquet, sistema elèctric actualitzat, alarma, alarma antincendi.
Actualment esta llogat a l’ajuntament i a una fundacio privada.
Centrico, en una de les millors zona del Raval, és un espai polivalent per a oficines museu gymnasio cafè llibreria etc etc
Despeses de comunitat 129 euros trimestral.
Si us interessa més informacions o una visita contacta amb Davide al sis nou vuit tres quatre cinc sis dos dos.
Codig de la Propietat IBCN01105
- Metres Construïts: 416 M²
- Banys: 3
- Certificació Energètica: C - 142 kWh/m² año
- Estat de Conservació: Buen estado
Contacta amb el nostre assessor:
Davide Rigoni
698 34 56 22
davide@inversionesgrup.com
Habitatge amb local comercial a Ciutat Vella – Venda
Habitatge de 81m2 – Local planta baixa – Entrades independents
Local – restaurant a Colonia Sant Pere – Venda Comercial
Terrassa 25m2 – Traster – Solar 254m2
Nau industrial al centre de Manacor – Venda Comercial
Solar 641m2 – Pati 18m2 – Cantoner


